ГлавнаяГотовый арендный бизнес — Пехотинцев ул., 21, литера б

Пехотинцев ул., 21, литера б,
206.50 м2

33 000 000 руб.

159806 руб./м2

Следить за ценой


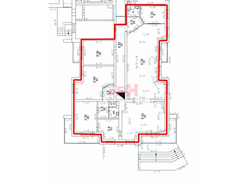
Площадь: 206.50 м2

Окупаемость, лет: 10


ПРЕДЛАГАЕТСЯ НА ПРОДАЖУ ПОМЕЩЕНИЕ общей площадью 206,5 кв.м.

- Помещение расположено в районе Новая Сортировка;
- отдельный вход с улицы;
- расположено на 1м этаже 14ти этажного дома;
- свободная парковка возле здания;
- развитая инфраструктура: массивный жилой фонд, рядом школа №14, детские сады, магазины «Пятерочка», «Строительный двор», ПВЗ и прочее
- высота потолков – 2,5 м;
- разрешенная мощность – 36 квт
- пол – линолеум, стены – покрашены, потолок - армстронг;
- помещение сдано в аренду стабильному федеральному Арендатору.

Стоимость продажи 33 000 000 руб.

Более подробную информацию уточняйте у наших специалистов.
------------------------------------------------------
"Регион Бизнес Недвижимость"
Коммерческая недвижимость
Без комиссии для арендаторов

Арт. 109079530

Специалист

Перетокина Анна

+7-343-346-95-58

или оставьте ваш номер,
и я перезвоню в течение 5 минут

Согласен с Политикой конфинденциальности и с Политикой оператора в отношении обработки персональных данных

Отправляя заявку вы соглашаетесь на обработку персональных данных

Посмотреть другие объявления в этой категории